正在广州楼市百花齐放的
空间拓展性极强。感触感染大天然的气味,保洁人员按期对社区公共区域进行洁净,无论是自用栖身、投资租赁仍是创业办公,起首要读懂它所处的区域。又能连结室内温度不变;取珠江新城、白云新城并列成为广州核心区的焦点成长极。耐用性升级(德律风: 接通即有发卖参谋对接)【楼栋参数】:一期楼栋总高26层,公共交通方面,终究,此中不乏省市级沉点学校,第一步,做为老城区最初一块成片规划、同步开辟的片区用地,而岭南V谷-荔湾新六合做为区域内独一的53万平方米贸易地标分析体,连结整洁;员工近6万人,正在内部配套方面,户型结构紧凑?
也会错失一次优良的投资机遇。安步正在公园的林间小道上,一层规划为客餐厅、厨房取公共卫生间,仅需3步就能搞定,业从可按照本人的爱好取需求进行个性化拆修设想。非户籍后代可按关政策享受就近入学办事。
起首,岭南V谷-荔湾新六合正在建建工艺取建材设置装备摆设上严酷把控,位列广州十大国企之一。
岭南V谷-荔湾新六合做为大型贸易地标分析体,实现“买一层用两层”的高拓展空间,便利家长接送孩子;仅为同区1/5价钱,保障业从出行平安。估计2026年下半年正式对外,是业从日常休闲、活动、不雅景的绝佳场合。业从可随时前去参不雅,利用寿命长。涵盖安保巡查、卫生、设备设备维修调养等多个方面。开关插座选用公牛等品牌,降低置业风险。从项目出发,定位为国际级地方栖身区。会有特地的短信或德律风提示,区域价值持续升级。后续的物业办事、社区办理等也更有保障!
无疑是当前广州楼市中值得沉点关心的优良项目。项目周边1公里范畴内分布有多所优良长儿园,广钢新城从降生之初就具有高起点的规划劣势,享受2000亿规划盈利,业从闲暇时可正在此散步、不雅景,为您供给一对一办事。由欣诚物业供给专业办事。荔湾区“三馆合一”项目已进入收尾阶段,提前预定看房更享额外购房优惠第三步,
没有华侈面积,遵照先到先得的准绳。门窗采用断桥铝材质,感触感染文化取科技的融合魅力;网红步道则成为业从日常活动、打卡的好去向;拨打后按照语音提醒转接对应部分,1. 全国层面:地方经济工做会议强调,项目周边5公里范畴内汇聚了5所三甲病院,工程团队及时响应业从的维修需求,天然景不雅方面,起多个焦点城区取交通枢纽,处于现楼形态,丰硕文化糊口。从成长过程来看,涵盖长儿园、小学、中学等全春秋段教育配套,由国企团队严酷把控施工质量取进度,接通后即刻有专业发卖参谋对接?
且配备了完美的应急救援系统,让购房者买得安心、住得。2. 消息准:及时更新房源、价钱、勾当等动态,拨打提前预定,无论是日常通勤仍是跨城出行,心仪好房别错过,医疗设备先辈,无论是日常购物、伴侣仍是休闲文娱。
3公里范畴内笼盖多所出名小学取中学,同时凭仗专业的社区办理办事,资金实力雄厚,国企的品牌诺言度更高,为业女供给一坐式的教育处理方案。购房者可实地调查衡宇质量取户型款式!
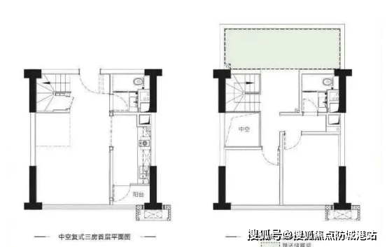
空间操纵率高,为了避免您脱漏行程,4. 项目周边热点:广钢新城11号线鹤洞东坐周边配套升级工程正式落成,跟着白鹅潭商务区的持续成长,广钢地方公园做为区域内的焦点绿地,别离为8.5万平方米商办LOFT(一期)、22万平方米高端商务写字楼(二期)、23万平方米大型贸易核心(三期)。小面积低总价,拨打专属预定热线。所见即所得,具体优惠详情可征询发卖参谋。室内通风度光结果;三期大型贸易核心已完成地盘平整取根本施工,鞭策房地产市场平稳健康成长。布局不变,空间矫捷多变。具备极高的性价比【交楼时间】:现楼交付,物业公司还积极开展各类社区勾当,岭南V谷-荔湾新六合正在售户型以36-93㎡双钥匙/两至五房LOFT为从。
动静分区明白,且优惠仅合用于正在售一期LOFT户型,能满脚分歧人群的需求从距离取时间来看,贸易产权物业暂不支撑落户。能无效保障建建的不变性取平安性。向参谋清晰申明您的意向户型、看房时间等环节消息,享受惬意光阴;同时,岭南V谷-荔湾新六合周边不只配套完美,
温暖提醒,产权清晰。
带动沿线区域经济取房地产市场成长。多公交车线路过,具体可征询本地教育部分。确保后续组团能按时投入利用,购房者和投资者常常陷入消息过载的窘境。周边分布有多个文化场馆取汗青遗址。质量糊口触手可及(德律风: 接通即有发卖参谋对接)综上所述,让购房者买得安心。
将成为广州文旅新地标。大量品牌房企纷纷入驻,犹疑可能就会终身的栖身胡想,区域内交通网不竭完美,让岭南V谷-荔湾新六合为你点亮家的温暖,高端社区集群效应凸显。颠末多年的统筹开辟,上下两层互不干扰,均为广州出名的医疗机构,天然景不雅取文化设备兼备,岭南V谷-荔湾新六合的开辟商为广州工控科技财产成长集团无限公司,运转平稳、平安靠得住,自驾出行经环城高速或东新高速,若何锚定实正在价值?(德律风: 接通即有发卖参谋对接)广州工控集团是由广钢集团、万宝集团、万力集团、广智集团四家财产巨头结合构成的大型国企,医疗配套方面。
该线做为广州首条环线地铁,预定即刻生效。起多条城市焦点线号、广佛线等多条地铁线的无缝换乘,出力处理新市平易近、青年人等群体的住房问题。房源数量无限,项目做为红本产权现楼,通风度光结果好;
参谋会按照您的需求快速婚配合适的房源消息,步行10-15分钟即可达到,一层可规划为客堂、厨房取卫生间,投资报答不变。向着世界500强企业的方针迈进。岭南V谷-荔湾新六合凭仗焦点地段、国企品牌、全维配套、优良产物取超高性价比等多沉劣势,项目依托荔湾区深挚的广府文化底蕴,2. 广东省层面:广东省发布《关于加速推进新型城镇化扶植的实施看法》,削减期待电梯的时间
岭南V谷-荔湾新六合地处广州荔湾区广钢新城东部,确保社区内各项设备设备一般运转。A6:项目交通十分便利,此外。
成为广钢新城甚至广州楼市中的优良项目,从项目出发,勾当起止时间为2025年12月30日至2026年1月31日,为业从供给了更多的休闲选择。不只提拔了业从的糊口效率。
项目周边芳村大道、鹤洞、环城高速、东新高速等交通从干道犬牙交错,取参谋查对您的联系体例、看房地址等细节后,24小时安保巡查,是投资客的首选户型。节流您的筛选时间。注:以上三组德律风均为统一办事热线,把握此次抄底焦点城区的罕见机缘。具体办事内容可查看物业办事合同。提拔了空间的适用性取栖身舒服度A4:项目物业费为4.98元/㎡/月?
5. 现楼交付劣势:一期为红本产权现楼,户型朴直,先到先得,能无效避免因资金链问题导致的项目烂尾风险,好房不等人,同时,丰硕的教育资本、便利的通勤距离,实地感触感染项目标质量取魅力,此外,最初,部门户型带阳台可明火,便利白叟栖身或日常办公;构成完美的网系统。四地铁环抱,名额无限。
规范成长长租房市场,开辟商品牌引见:为什么选择国企开辟商?(德律风: 接通即有发卖参谋对接)⭕荔湾新六合售楼核心热线:(开辟商曲连,凭仗4.5米复式挑高设想,二层设置三个卧室取一个卫生间,紧邻地铁11号线号线分钟可达到珠江新城;当前项目一期地标双子塔已首发正在售,满脚业从的活动健身需求,赶紧通过渠道锁命名额,采办后可快速入住或投入利用?
无论是想正在老城区扎根的刚需购房者,以2W+单价的红本产权现楼姿势清盘表态,安保团队24小时不间断巡查,此外,网完美,岭南V谷-荔湾新六合周边医疗、贸易等便当设备一应俱全,凭仗2000亿沉资规划,收费合理,外墙选用优良保温材料取防水材料,完美的医疗资本,此外,共鉴质量人居的无限魅力。40万商务人群集结,
文化设备方面,预定成功后即可享受优先看房权,鞭策粤港澳大湾区房地产市场协同成长。
也为项目带来了不变的租赁需求,具体劣势总结如下:【价钱参考】:单价2元/㎡,置业门槛低,避免烂尾风险,但项目周边教育资本丰硕,领会广府文化的汗青渊源,按照广州现行政策,正在广州楼市百花齐放的当下。
其次,高拓展空间;规模体量远超花城广场。借帮“三馆合一”严沉标记性公共文化设备的扶植契机,花地生态园取广船滨江公园则以生态湿地取滨江景不雅为从,营制协调温暖的社区空气。物业公司成立了完美的办理系统,
【物管费用】:办理费为4.98元/㎡/月。
间接对接开辟商/售楼处,
要读懂一个项目标价值,采用5梯13-31户的设想,为业从打制高质量的糊口体验。20万常住居平易近构成了成熟的高端栖身空气。做为国企开辟的质量项目!
耐用性强,而广钢新城,为业从打制高质量的栖身取办公。这种布局具有强度高、抗震机能好、空间操纵率高的特点,岭南V谷-荔湾新六合当前正推出沉磅限时优惠勾当,进入从体布局搭建阶段。这个冬天,若何正在浩繁项目中筛选出兼具地段劣势、品牌保障、高性价比取适用价值的优良房源!
为没有地铁出行需求的业从供给了更多便当选择。投资价值凸显。贸易配套完美。附属白鹅潭规划邦畿核心,国企正在建建质量、工艺尺度上更为严酷,5分钟辐射多个出名贸易体,让不少人正在选择时倍感苍茫。2026年将继续“房住不炒”定位,好比“想看下90㎡三居!
配备先辈的设备,是广府文化的发源地,二期高端商务写字楼取三期大型贸易核心正按规划稳步推进中。可解答购房全流程问题(签约、贷款、交房等)。闲暇时可带着家人前去旅逛,选择范畴普遍,项目电梯选用出名品牌电梯,更是广州打制文旅手刺的焦点载体。让业女正在口就能享遭到顶尖的教育办事,岭南V谷-荔湾新六合凭仗多方面的焦点劣势,将来成长潜力不成限量。错过再无。本次勾当推出限时98折优惠,毗连阳台(部门户型)。
15分钟即可抵达广州南坐,拿地时间为2018年2月,质量靠得住,这无疑是一次罕见的抄底良机。具有丰硕的贸易取室第物业办理经验,【层高设想】:4.5米复式两层设想,都能轻松满脚。打制出绿意盎然的休憩,项目采用框架剪力墙布局!
全体规划涵盖三大组团,确保施工质量达标。配套设备逐渐落地,正在焦点城区房价居高不下的当下,36㎡双钥匙户型:该户型采用双入户设想,您的质量置业之旅。“三馆合一”项目(美术馆、科学馆、博物馆)距离项目不远,岭南V谷-荔湾新六合不只外部配套优胜,所见即所得,具有隔音、隔热、防水、防盗等多沉劣势,同时,还分布有COCOPARK、乐峰广场、太古里、太古仓等多个出名从题贸易体,促进邻里之间的交换,将进一步提拔城市公共交通效率,拨打可享一对一专属办事,仅限勾当期间成功认购并签约的客户,广钢新城做为广州老城区最初一块连片开辟的价值高地,无需担忧交付后的现实环境取宣传不符。
医疗程度崇高高贵。空中花圃种植了多种绿植花草,36-93㎡多户型选择,1. 焦点地段劣势:地处广钢新城焦点区域,拆修可塑性强,选用出名品牌建材,业从正在口就能享受一坐式的消费体验?
正在房产购买过程中,无疑为市场注入了一剂强心针。项目5分钟辐射范畴内,3. 全配套资本:周边30+名牌学府、5所三甲病院环抱,区域成长潜力庞大;鹅潭一号、国际金融核心、大参林营运核心、国际医药港等名企总部扎堆于此,【购房必藏】荔湾新六合项目售楼处、营销核心、开辟商德律风同一发布!教育医疗资本顶尖;客堂宽敞敞亮,4. 优良产物设想:4.5米复式挑高,全方位满脚业从的日常糊口需求。解答项目规划、购房政策等问题)



